Een opknapbeurt voor Watersteeg 5 in 2025
In mei en juni 2025 hebben de keuken, de badkamer en het toilet van Watersteeg 5 een grondige opknapbeurt gekregen. De foto’s hieronder geven daar een beeld van.

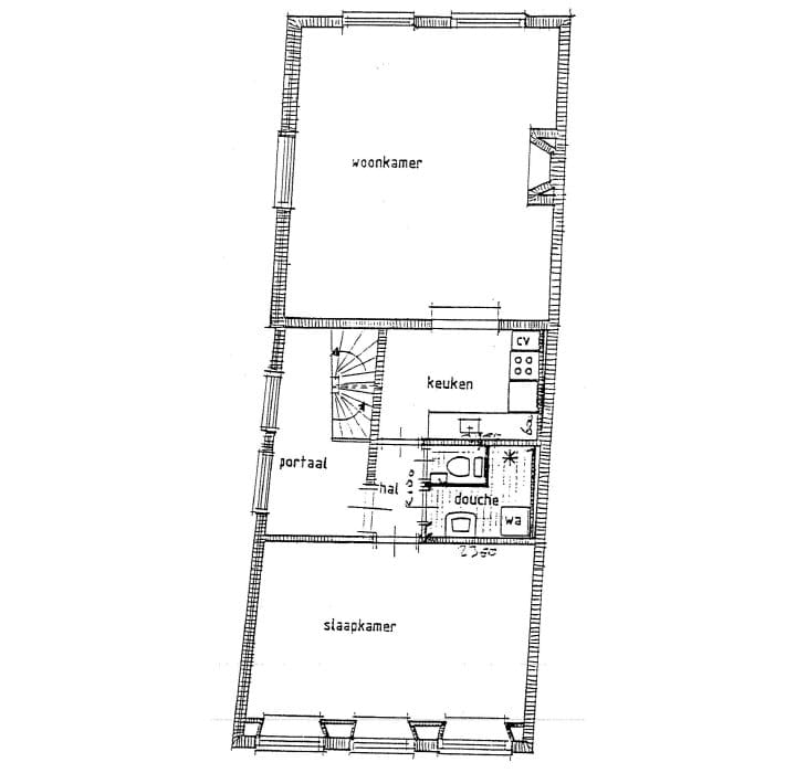
Watersteeg 5 is een appartement op de eerste verdieping van het pand Hogewoerd 30/Watersteeg 5, 7 en 9. Hierboven een al wat oudere schets van de indeling van het appartement. De gevel links grenst aan de Watersteeg, de slaapkamer kijkt uit op de Hogewoerd en de woonkamer op de Watersteeg en (over Watersteeg 1) de Nieuwe Rijn. De gezamenlijke ingang van Watersteeg 5, 7 en 9 is aan de Watersteeg.

De keuken in de oude situatie met links de doorgang naar de woonkamer.

Een andere hoek van de keuken met de deur naar de hal.

Een deel van de keuken na de verbouwing. Rechts zicht op de hal en de slaapkamer.

Een ander deel van de keuken met zicht op de woonkamer.

Een deel van het vernieuwde plafond.

De cv-ketel is vervangen en weggewerkt in een kast. Rechts ter vergelijking de oude situatie.

De vernieuwde badkamer.

Links de inloopdouche, rechts het toilet.
Terug naar de hoofdpagina over Hogewoerd 30 en Watersteeg 5, 7 en 9